川口市大字芝 4LDKの物件詳細

【外観】こちらの物件が少しでも気になるようでしたら、お気軽にお問合せください。人生でいちばん大きなお買い物ですので、ゆっくりご見学ください。ネット上の画像と実際の見学では、リアル感がまるで違います。

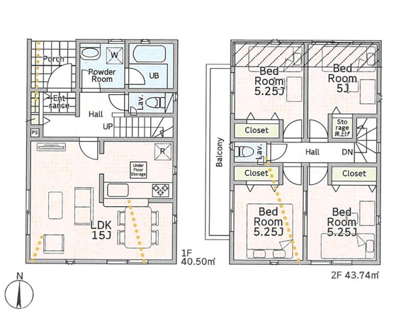
間取

区画図

堂々たる趣ながら、主張し過ぎずどこか余裕を感じさせるシャープなフォルムで佇む邸宅は、晴天の空と照らし合わせる事で、本来あるべき完成形の姿を見せてくれます。

【前面道路】家の前をまっすぐの通りが走っている。クルマは少なく、人々は毎朝、ウォーキング、ジョギング、犬の散歩など、フリーな朝時間を過ごしている。

【駐車場】毎日の生活にマイカーが必須という方は、購入を検討する際、駐車場があることは大事な条件です。毎日の通勤や家族の送迎、買い物やお出かけなどクルマのある暮らしを満喫したい方は要チェック。

【ぜひ現地をご確認下さい】陽当りや通風性など各所に施された工夫で住みやすさを実現。部屋の大きさや周辺環境・街並など、資料には掲載していない情報が現地にはたくさんございます。是非ご確認下さい。

【在来工法】接合部には金物・筋かいなどで補強を行い、より強度を高めています。木材はプレカットにより品質のバラツキを防ぎ、安定した品質の住宅を供給しています。
掲載期限まであと11日
いい物件は早い者勝ち!物件の詳細情報
外観(1枚)
その他(6枚)
もっと見る
【前面道路】家の前をまっすぐの通りが走っている。クルマは少なく、人々は毎朝、ウォーキング、ジョギング、犬の散歩など、フリーな朝時間を過ごしている。
【駐車場】毎日の生活にマイカーが必須という方は、購入を検討する際、駐車場があることは大事な条件です。毎日の通勤や家族の送迎、買い物やお出かけなどクルマのある暮らしを満喫したい方は要チェック。
【ぜひ現地をご確認下さい】陽当りや通風性など各所に施された工夫で住みやすさを実現。部屋の大きさや周辺環境・街並など、資料には掲載していない情報が現地にはたくさんございます。是非ご確認下さい。
【在来工法】接合部には金物・筋かいなどで補強を行い、より強度を高めています。木材はプレカットにより品質のバラツキを防ぎ、安定した品質の住宅を供給しています。
物件概要
- 物件名
-
- 所在地
- 構造および階建て
木造2階建
- 建ぺい率・容積率
60%・160%
- 完成予定日
2026/06
- 入居可能予定日
2026/06下旬
- 土地権利
所有権
- 借地権の月賃料
-
- 借地期間
-
- 保証金
-
- 敷金
-
- 駐車場
-
- 国土法届出
不要
- 地目
宅地
- 都市計画
市街化区域
- 道路付け
一方、北4m幅
- 取引態様
仲介
- 用途地域
第二種住居
- 施工会社
-
- 建築確認番号
第25UDI1W建11892号
- 設備
水道:公営 / 排水:下水 / バス・トイレ別 / シャワー / システムキッチン / バルコニー / 全居室収納 / クローゼット
- 備考
建築確認番号:第25UDI1W建11892号
販売概要
- 販売価格
3,790万円
- 販売戸数/総戸数
-/1戸
- 間取り
4LDK
- 建物面積
84.24㎡
- 土地面積
85.44㎡
- その他施設費用、償却費
-
- その他費用
-
- モデルルーム情報
-
会社情報
- 会社名
株式会社東宝ハウス浦和
- お問い合わせ先
0120-919-113
- 会社概要
株式会社東宝ハウス浦和[埼玉県知事(4)第21060号]
埼玉県さいたま市浦和区岸町6-1-5
この物件は未完成のため、掲載写真(外観、内観、設備等)には、施工例が含まれている場合があります。物件詳細については、掲載の不動産会社宛にお問合せください。
掲載期限まであと11日
いい物件は早い者勝ち!取り扱い不動産会社
株式会社東宝ハウス浦和
- 住所
- 埼玉県さいたま市浦和区岸町6-1-5
- 営業時間
- 9:00~21:00
- 電話番号
- 0120-919-113
- 免許番号
- 埼玉県知事(4)第21060号
- 所属団体
- 公益社団法人 全日本不動産協会会員 / 公益社団法人 首都圏不動産公正取引協議会加盟 / 公益社団法人 全国宅地建物取引業保証協会
